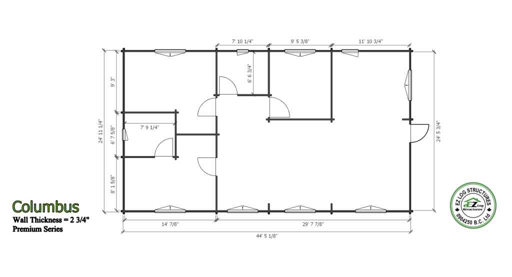
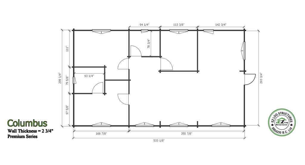
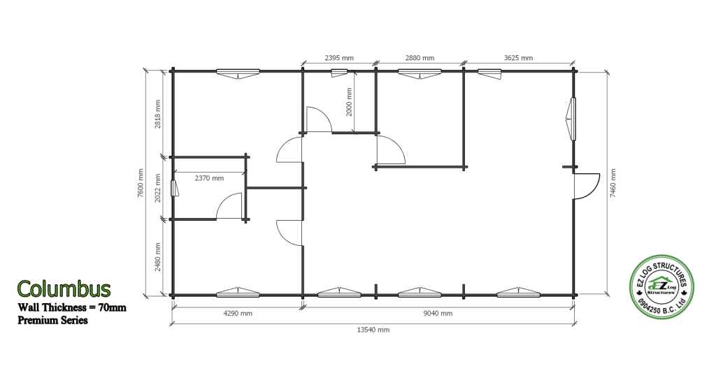
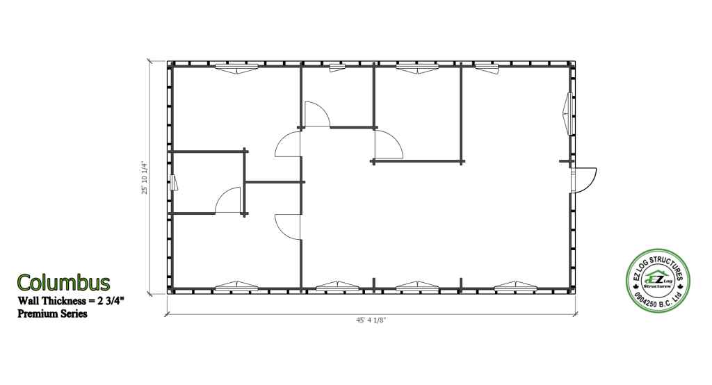
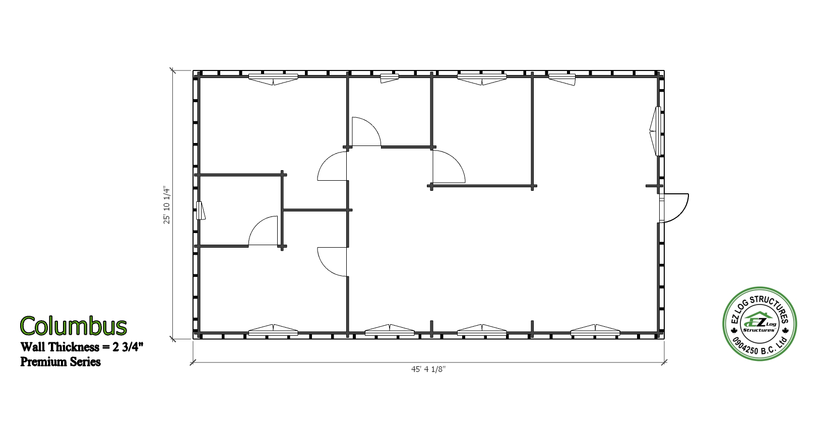
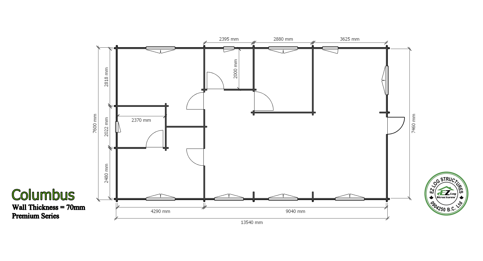
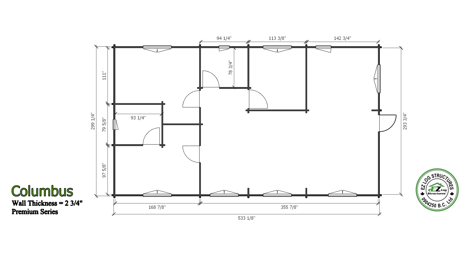
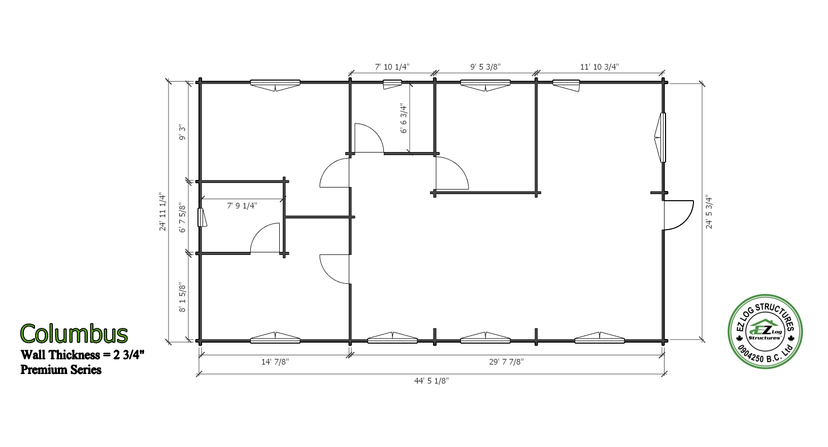
Columbus is a barndominium style 3 bedroom home with just under 1100 sq’ of living space. It has vaulted ceilings throughout and is delivered to site and ready to assemble on a concrete slab or wood sub floor. (sq footage is based the total footprint, living space could be less, see floor plans)
Kit includes:
- ready to assemble on a concrete slab or wood foundation
- pre-cut, numbered exterior walls
- pre-cut, numbered interior walls
- pre-cut, numbered gable components
- 4/12 roof pitch (18 degrees)
- vaulted, cathedral ceilings
- sidewall height 95″ (2413mm)
- pre-cut, 100mm x 200mm (4″x 8″) glulam roof purlins spaced 558mm (22″) or less
- pre-cut, numbered (18mm) 3/4″ tongue & groove roof boards
- pre-cut, numbered fascia boards
- 2296 total sq’ of wall area
- 1199 sq’ of exterior wall surface
- 236 lineal’ per row
- 5 interior doors 812mm x 2040mm (32″x 80″)
- 2 single wide wood windows 530mm x 530mm (21″x 21″)
- 1 single wide wood window 765mm x 990mm (30″x 39″)
- 1 double wide wood windows 1530mm x 812mm (60″x 32”)
- 6 double wide wood windows 1530mm x 990mm (60″x 39″)
- 1 exterior door with multi locking hardware 1/2 glass tempered 990mm x 2040mm (36″x 80″)
- pre-built deck railings with vertical balustrades
- adjustable posts
- hardware for doors & windows
- 2 spare wall logs/spare roof boards
- 2,500 – 8″ log screws to connect each row, gable components, purlins
- packaged/wrapped and marked for sequence of assembly
- FREE SHIPPING
- FOUNDATION SIZE DRAWING
- STAMPED STRUCTURAL ENGINEERING
NOTE: Kits include residential grade, double glazed wood windows & doors. Rough openings can be created to accommodate locally purchased windows & doors
EXTERIOR SIDING KITS

Choose from 3 types of siding to cover the exterior of your home. Semi D-Log 3/4″ tongue & groove wood siding, Full D-Log 1-1/8″ tongue & groove wood siding or heavy duty maintenance free extruded PVC polymer siding
Each kit includes: siding, corner blocks, trims

1) ADD 10% – Semi D-Log siding (Max) 3/4″ x 5-1/8″ (18mm x 130mm)

2) ADD 14% – Full D-Log siding (Otoczak) 1-1/8″ x 5-1/8″ (28mm x 130mm)


3) ADD 20% – Vox extruded prefinished PVC polymer siding 5/16″ x 13″ (7mm x 330mm)
PVC siding can be applied horizontally or vertically
Window Options:

1) Kit includes double glazed residential grade wood windows. To upgrade all windows to triple glazed/Low E/Argon gas filled (17 sash)
Add – $ 2,047.00 USD
Add – $ 2,380.00 CAD
OR

2) Replace all wood windows with our exclusive white PVC/Shutter windows, triple glazed/Low E/ Argon filled glass. Includes exterior insulated rolling shutters that are controlled from the interior. Added comfort, security, improved energy efficiency, reduced outside noise & complete darkness for daytime sleepers (See the video on the video section)
Add – $ 4,386.00 USD
Add – $ 5,100.00 CAD



























