SHIPPING & STRUCTURAL ENGINEERING INCLUDED
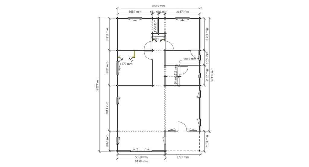
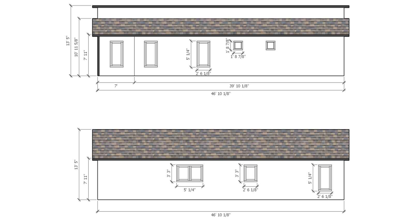
Thompson is NEW model for 2026 and is a stylish 1362 sq’ home with 3 bedrooms, 2 bathrooms. This design has a two level flat sloped roof with vaulted/cathedral ceilings. Can be assembled by 3 people in 8 days
Kit includes:
- ready to assemble on a concrete slab or wood foundation
- pre-cut, numbered exterior walls
- pre-cut, numbered interior walls
- pre-cut, numbered gable components
- sidewall height 95″ (2413mm)
- vaulted, cathedral ceilings
- roof pitch 4/12 (18.5 degrees)
- pre-cut 4″ x 8″ (100mm x 200mm) glulam roof purlins/beams, spaced 22″ (558mm) or less
- pre-cut, numbered 3/4″ (18mm) tongue & groove roof boards
- pre-cut, numbered fascia boards
- 3696 total sq’ of wall area
- 1470 sq’ of exterior wall surface
- 308 lineal’ per row
- 1628 sq’ roof area (184 sq’ meters)
- 5 interior doors 32″x 80″ (812mm x 2040mm), hardware
- 2 single wide wood window 21″x 21″ (530mm x 530mm)
- 1 single wide wood window 30″ x 39″ (765mm x 990mm)
- 6 single wide wood windows 30″ x 60″ (765mm x 1530mm)
- 3 double wide wood windows 60″ x 39″ (765mm x 990mm)
- 1 triple wide wood window 90″ x 60″ (2295mm x 1530mm)
- 1 exterior doors 36″x 80″ (990mm x 2040mm) 1/2 glass tempered, multi locking hardware
- 1 – 5′ closet kits for locally purchased bi-fold doors
- 1 – 4′ closet kits for locally purchased bi-fold doors
- 2 spare wall logs/spare roof boards
- 3,600 – 8″ log screws to connect each row, gable components, purlins
- packaged/wrapped for sequence of assembly
- FREE SHIPPING
- FOUNDATION SIZE DRAWING
- STAMPED STRUCTURAL ENGINEERING
SIDING OPTIONS (click here for more information on siding)
Choose from 3 types of EZ Log siding to cover the exterior of your home. Our siding installs over the exterior studs, without the need for plywood. Each kit includes siding, corner blocks, trims
Option 1) Max semi D-Log wood siding 3/4″ x 5-1/8″ (18mm x 130mm) Add – $ 7,158.00 USD | $ 8,628.00 CAD
Option 2) Otoczak full D-Log wood siding 1-1/8″ x 5-1/8″ (28mm x 130mm) Add – $ 11,715.00 USD | $ 14,112.00 CAD
Option 3) Vox extruded maintenence free PVC polymer siding 5/16″ x 13″ (7mm x 330mm) Add – $ 21,535.00 USD | $ 25,945.00 CAD
WINDOW OPTIONS (click here for more information on windows)
Option 1) Upgrade all wood windows to triple glazed/Low E/Argon gas filled (18 sash)
Add – $2,448.00 USD
Add – $2,880.00 CAD
Option 2) Upgrade all wood windows with our exclusive white PVC/Shutter windows with triple glazed/Low E/ Argon filled glass. Includes exterior insulated rolling shutters that are controlled from the interior. Added comfort, security, improved energy efficiency, reduced outside noise & complete darkness for daytime sleepers (See the video on the video section)
Add – $6,480.00 CAD
Option 3) Buildings can be ordered without windows or doors. Rough openings will be created for locally supplied windows & doors




















