- ready to assemble on a concrete slab or wood foundation
- pre-cut, numbered exterior walls
- pre-cut, numbered interior walls
- pre-cut, numbered gable components
- vaulted, cathedral ceilings
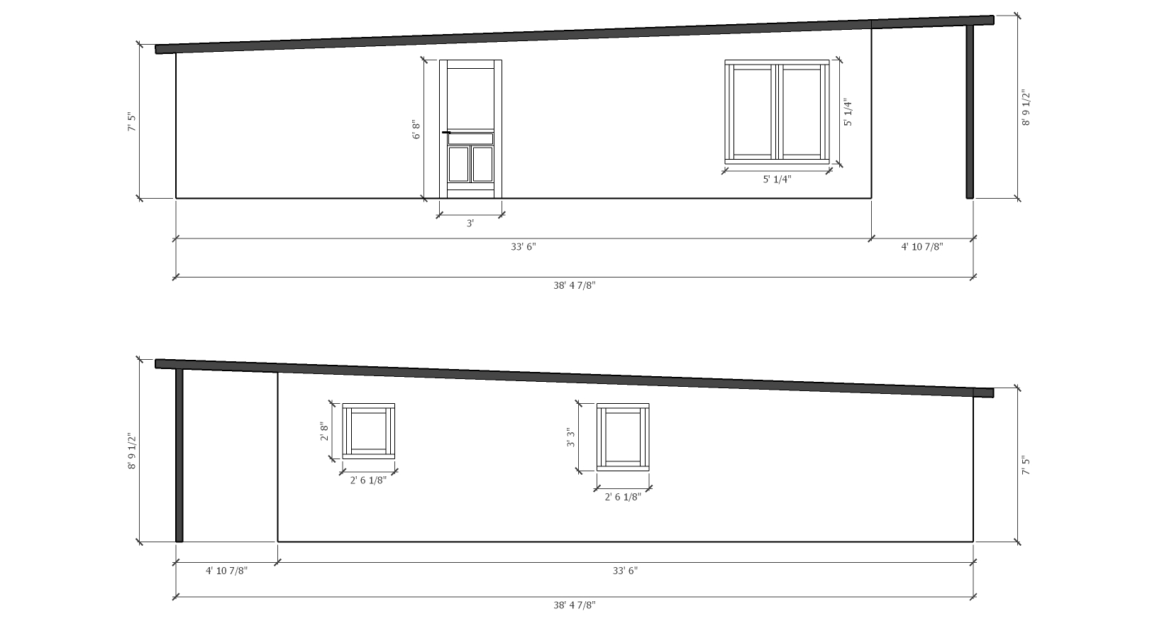
- front wall height 103″ (2617mm)
- back wall height 89″ (2260mm)
- roof pitch 0.5/12 (2 degrees)
- pre-cut 4″x 8″ (100mm x 200mm) glulam roof purlins/beams, spaced 22″ (558mm) or less
- pre-cut, numbered 3/4″ (18mm) tongue & groove roof boards
- pre-cut, numbered fascia boards
- 1290 total sq’ of wall area
- 838 sq’ of exterior wall surface
- 161 lineal’ per row
- 842 sq’ roof area (78 sq’ meters)
- 4 interior doors 32″x 80″ (812mm x 2040mm), hardware
- 2 single wide wood windows 30″x 32″ (765mm x 812mm)
- 3 single wide wood windows 30″x 39″ (765mm x 990mm)
- 1 singe wide wood window 30″x 60″ (765mm x 1530mm)
- 1 double wide wood window 60″x 60″ (1530mm x 1530mm)
- 2 exterior door 36″x 80″ (990mm x 2040mm) 1/2 glass tempered, multi locking hardware
- deck posts
- 2 spare wall logs/spare roof boards
- 1,300 – 8″ log screws to connect each row, gable components, purlins
- 11 rolls 107 sq’ (10 sq meters) roofing underlay (NEW 2026)
- packaged/wrapped and marked for sequence of assembly
- SHIPPING request a quote
- FOUNDATION SIZE DRAWING
- STAMPED STRUCTURAL ENGINEERING
NOTE: Kits include residential grade, double glazed wood windows & doors. Rough openings can be created to accommodate locally purchased windows & doors
SIDING OPTIONS (click here for more information on siding)
Choose from 3 types of EZ Log siding to cover the exterior of your home. Our siding installs over the exterior studs, without the need for plywood. Each kit includes siding, corner blocks, trims
Option 1) Add 10% for Max semi D-Log wood siding 3/4″ x 5-1/8″ (18mm x 130mm)
Option 2) Add 14% for Otoczak full D-Log wood siding 1-1/8″ x 5-1/8″ (28mm x 130mm)
Option 3) Add 20% for Vox extruded maintenence free PVC polymer siding 5/16″ x 13″ (7mm x 330mm)
WINDOW OPTIONS (click here for more information on windows)
Option 1) Upgrade all wood windows to triple glazed/Low E/Argon gas filled (8 sash)
Add – $ 1,088.00 USD
Add – $ 1,280.00 CAD
Option 2) Upgrade all wood windows with our exclusive white PVC/Shutter windows with triple glazed/Low E/ Argon filled glass. Includes exterior insulated rolling shutters that are controlled from the interior. Added comfort, security, improved energy efficiency, reduced outside noise & complete darkness for daytime sleepers (See the video on the video section)
Add – $ 2,880.00 CAD





















